只今満室です!空室情報メール配信受付中!
内覧をご希望の方は
お問い合わせください。
空室情報メール
配信受付中!





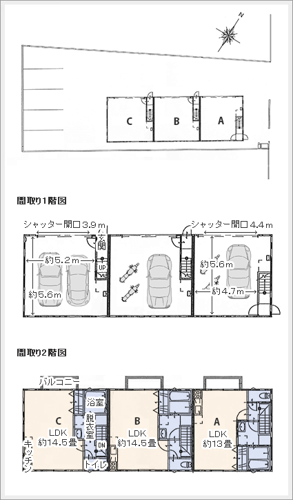
| 総戸数 | 3戸(S×1・SW×2)(募集戸数:3戸) |
|---|---|
| アクセス | 【最寄インター・最寄り駅】 中央道 国立府中IC 約10km 東名高速 横浜町田IC 約15km 小田急線「鶴川」駅バス 16分 停歩2分 小田急線「多摩センター」 駅バス12分 停歩2分 |
| 所在地 | 東京都町田市小野路町 |
| 賃貸料 | A号室:123,000円/月 B号室:126,000円/月 C号室:128,000円/月 共益費:各戸2,000円/月 |
| 費用 | 敷金2ヶ月 礼金1ヶ月 その他(借家人賠償保険加入、保証人代行会社保証料、仲介手数料) |
| 特徴 |
|
| Sタイプ (1戸) |
【1階】
|
| SWタイプ (2戸) |
【1階】
|
※ご入居にあたり家主様の審査があります。
※図面と現況が相違する場合、現況優先と致します。
仲介:三和シヤッター工業株式会社 リテール支店
